Vihikari 10
Etusivu Ajankohtaista Palvelut Meistä Ota yhteyttä In English
Home What's new Services About us Contact us Suomeksi
Toimitilat Toimistotilat Tuotantotilat
Kokoustilat Saunatila
Business premises Offices Production facilities
Conference rooms Sauna facilities
EtusivuAjankohtaista Toimitilat Toimitilat Toimistotilat Tuotantotilat Kokoustilat Kokoustilat Saunatila PalvelutMeistäOta yhteyttäIn English
Vihikari 10
HomeWhat's new Business premises Business premises Offices Production facilities Conference rooms Conference rooms Sauna facilities ServicesAbout usContact usSuomeksi

Ota yhteyttä toimitilasta
Aulapalvelu Vihikari19. marraskuuta 2025Vihikari 10
Facebook0 Twitter 0 Likes
Edellinen

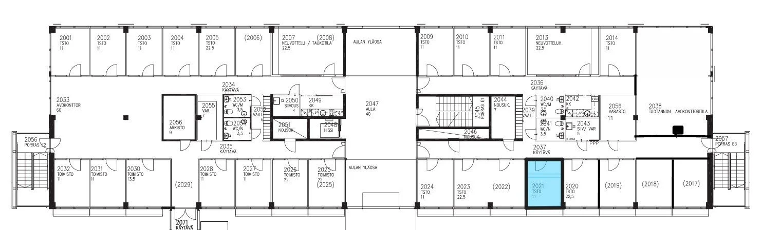
Toimisto / varasto 2. krs – 11 m²

Toimistotila, VarastotilaAulapalvelu Vihikari25. marraskuuta 2025Vihikari 10
Seuraava

Tuotanto/varasto 1. krs – 254 m²

Tuotantotila, VarastotilaAulapalvelu Vihikari22. tammikuuta 2025Vihikari 10

Vihikari 10
90440 Kempele

 
 
absagax.png
Aukioloajat